Office in Ta’ Xbiex
Office in Ta’ Xbiex | Overview
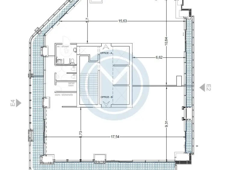
Office in Ta’ Xbiex for rent designed to cater to the needs of modern businesses. This 165 SQM internal space, complemented by a 37 SQM external terrace, is perfect for companies seeking a dynamic and functional workspace for 15-20 personnel. The office is part of a multi-floor business centre that features top-notch amenities and services, including a manned reception and 24/7 access. On-site parking available.
Office in Ta’ Xbiex | Highlights
- 360 Views of Valletta, Sliema Creek, Manoel Island
- Manned Reception
- Raised Flooring & High Ceilings
- Server Room Space
- Lift Access
- CCTV in Common Areas and Parking
- On-Site Underground Parking
Ta’ Xbiex | Office Space Information
- Internal Space: 165 SQM
- External Terrace: 37 SQM
- Capacity: Suitable for 15-20 people
- Expansion Option: Can be combined with adjacent units for larger space requirements
The office is delivered in an open plan, highly finished state, with the option for tenants to customise the layout to their specific needs. Partitions can be added upon request, with the turnaround time depending on the extent of customisation.
Office in Ta’ Xbiex | Qualities & Benefits
Office-Specific Qualities
This office space in Ta’ Xbiex is perfectly suited for high-profile corporations, technology and IT companies, financial institutions, as well as legal and consulting firms. The office is designed for dynamic businesses requiring a blend of private and collaborative workspaces within a prestigious location.
- Flexible Layout Options: The office is currently offered in an open-plan, highly finished state. Tenants can customise the layout with partitions based on their specific needs, enabling a tailor-made workflow and culture.
- Expansive Terrace: The 37 SQM external terrace offers stunning 360-degree views of Valletta, ideal for informal meetings, breaks, or entertaining clients.
- Advanced Infrastructure: Features raised flooring, high ceilings, and a comprehensive air-conditioning system to support a comfortable and efficient work environment.
- IT and Tech Ready: Equipped with a server room space and extensive technological support capabilities, making it suitable for businesses with advanced IT requirements.
- High-Security Measures: Includes manned reception, 24-hour security, CCTV surveillance in common areas and parking, and sophisticated fire safety systems to ensure a safe and secure working environment.
- 24/7 Access and Convenience: Enjoy round-the-clock access to the office, with lift access and optional underground parking facilities with an allocation of approximately 6 spaces per floor.
- Collaborative Environment: The open desk areas are designed to foster teamwork and innovation, creating a productive atmosphere for your team.
- Expansion Option: For growing businesses, this unit can be combined with adjacent units to accommodate larger space requirements.
Location-Specific Benefits
Situated in the heart of Ta’ Xbiex, this office space offers an unrivalled location that combines commercial vitality with scenic beauty. Its strategic positioning makes it an ideal choice for businesses seeking a prestigious address that provides both convenience and a dynamic working environment. The proximity to key locations and essential services ensures that your business operations run smoothly while offering your team a vibrant community to thrive in.
Nearby Amenities
- Proximity to Valletta: Just 15 minutes from Malta’s capital, providing easy access to government offices, major corporations, and cultural sites.
- Healthcare Access: Near Mater Dei Hospital for immediate healthcare needs.
- Educational Facilities: Close to schools, making it convenient for employees with families.
- Recreational Opportunities: Manoel Island and other leisure spots are nearby for relaxation and team-building activities.
- Dining and Entertainment: A wide array of restaurants, cafes, and bars in the vicinity for business lunches and after-work gatherings.
- Financial Services: Close to local banks and financial institutions, facilitating business transactions.
- Comprehensive Amenities: Including sports facilities, childcare centres, petrol stations, pharmacies, healthcare centres, and food stores.
- Excellent Connectivity: Superb transport links for easy commuting for employees and clients.
Schedule an Office Viewing
Discover the potential of this premium office space in Ta’ Xbiex by scheduling a private viewing. Our team is ready to guide you through the features and benefits of this exceptional business location. Experience the elegant design, appreciate the strategic location, and explore the surrounding amenities firsthand. Contact us today to arrange a convenient time for your visit. Your ideal office space awaits, offering the perfect environment to elevate your business operations.
Address
Open on Google Maps- City Ta' Xbiex
- Region Sliema & St. Julian's Surroundings
Details
- Property ID MO-30003
- Price €6,300/Monthly
- Property Size 165 m²
- Property Type Business Centres, Offices
- Property Status To Rent
- Ext. Area m² 37
- Rental Rate m²/yr 458





