Palazzo Office Block To Let
Palazzo Office Block To Let | Overview
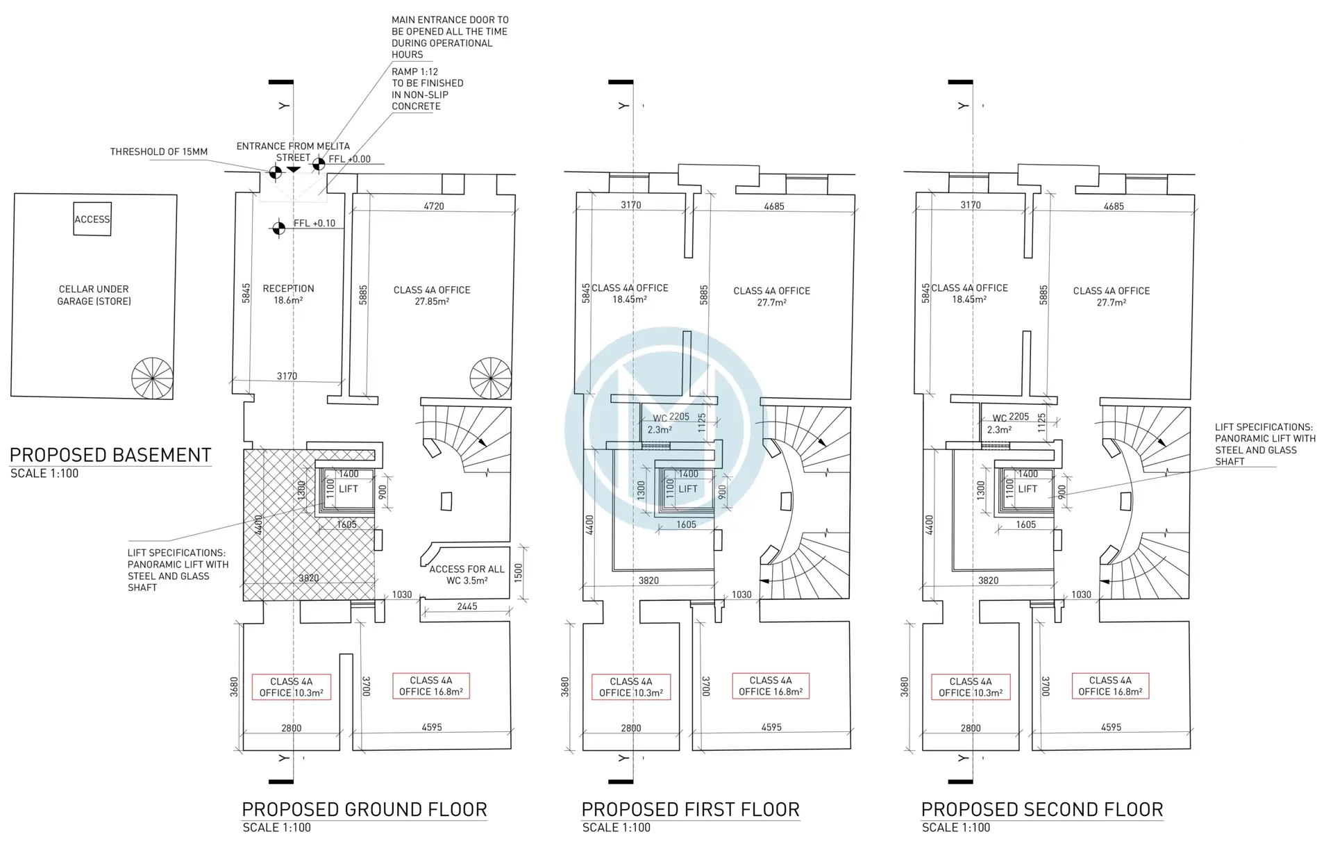
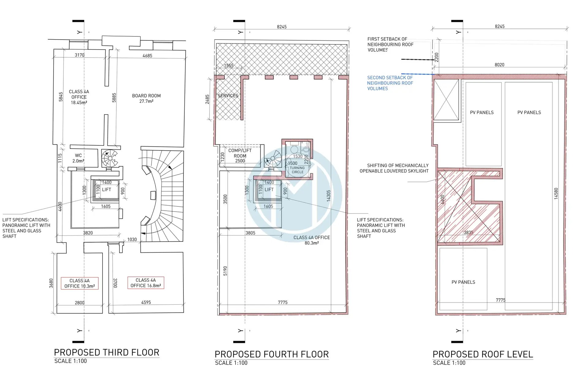
Palazzo Office Block To Let in Valletta offers a rare chance to lease an entire historic office building in Malta’s capital. Spanning 500 SQM of internal area across four floors, the property features 14 separate rooms, 4 bathrooms, and includes 2 private parking spaces: a highly valuable amenity in central Valletta. With a mix of period architecture and functional upgrades, this space is ideal for embassies, law firms, international consultancies, or any business looking to position itself in a high-prestige location. Lift access, high ceilings, and independent entry make this a standout headquarters opportunity in Malta’s professional and governmental heart.
Key Features
- Prestigious Standalone Headquarters: A full-building lease in central Valletta delivers complete brand control, privacy, and a high-status presence ideal for embassies or executive firms.
- Efficient Departmental Layout: With 14 separate rooms across 500 SQM, teams can operate across private offices, boardrooms, reception areas and support zones, without layout compromises.
- On-Site Private Parking: Two dedicated parking spaces, one internal garage and one reserved street-level spot, improve executive access and eliminate daily parking friction.
- Ready Operational Infrastructure: Equipped with lift access, air-conditioning, backup generator and fibre-optic cabling, allowing immediate occupation without major upgrades or setup delays.
Location Info
- Located in Valletta, Malta’s commercial, legal, and governmental capital, this office is within walking distance of the Law Courts, Parliament, Auberge de Castille, and City Gate. It offers exceptional visibility and access to institutional partners, consulates, and financial bodies.
- Commute times are efficient across key central areas: approximately 10 minutes from Sliema, 15 minutes from St Julian’s, and 12 minutes from Mriehel by car. The Valletta Bus Terminus is just 5 minutes on foot, providing direct links across the island.
- The property is surrounded by pedestrianised streets, boutique cafés, and essential amenities. Upper Barrakka Gardens, just minutes away, offers a quiet green space for staff breaks and informal meetings. Discreet residential units in the area support mixed-use activity without affecting the building’s commercial focus.
Nearby Amenities
- Cafés, restaurants, and wine bars
- Banks, ATMs, and postal services
- Law courts and consular offices
- Public transit, ferry, and taxi stands
- Shops, galleries, and gardens
Schedule a Viewing Today
If you’re seeking a centrally located, character-rich headquarters, this Palazzo Office Block To Let in Valletta offers a commanding presence and professional flexibility.
Call Us: +356 7942 3033
Find Out More: Offices in Valletta
Details
Updated on October 21, 2025 at 5:47 pm- Property ID MO-28722
- Price €19,500/Monthly
- Property Size 500 m²
- Rooms 14
- Bathrooms 4
- Parking Spaces 2
- Property Type Offices
- Property Status To Rent
Features
Similar Listings
Valletta Serviced Offices for rent
- From €300/Monthly
Serviced Offices in Valletta for rent
- From €300/Monthly










