Balluta Seafront Office
- POR
Balluta Seafront Office
Balluta Seafront Office for Rent | Overview
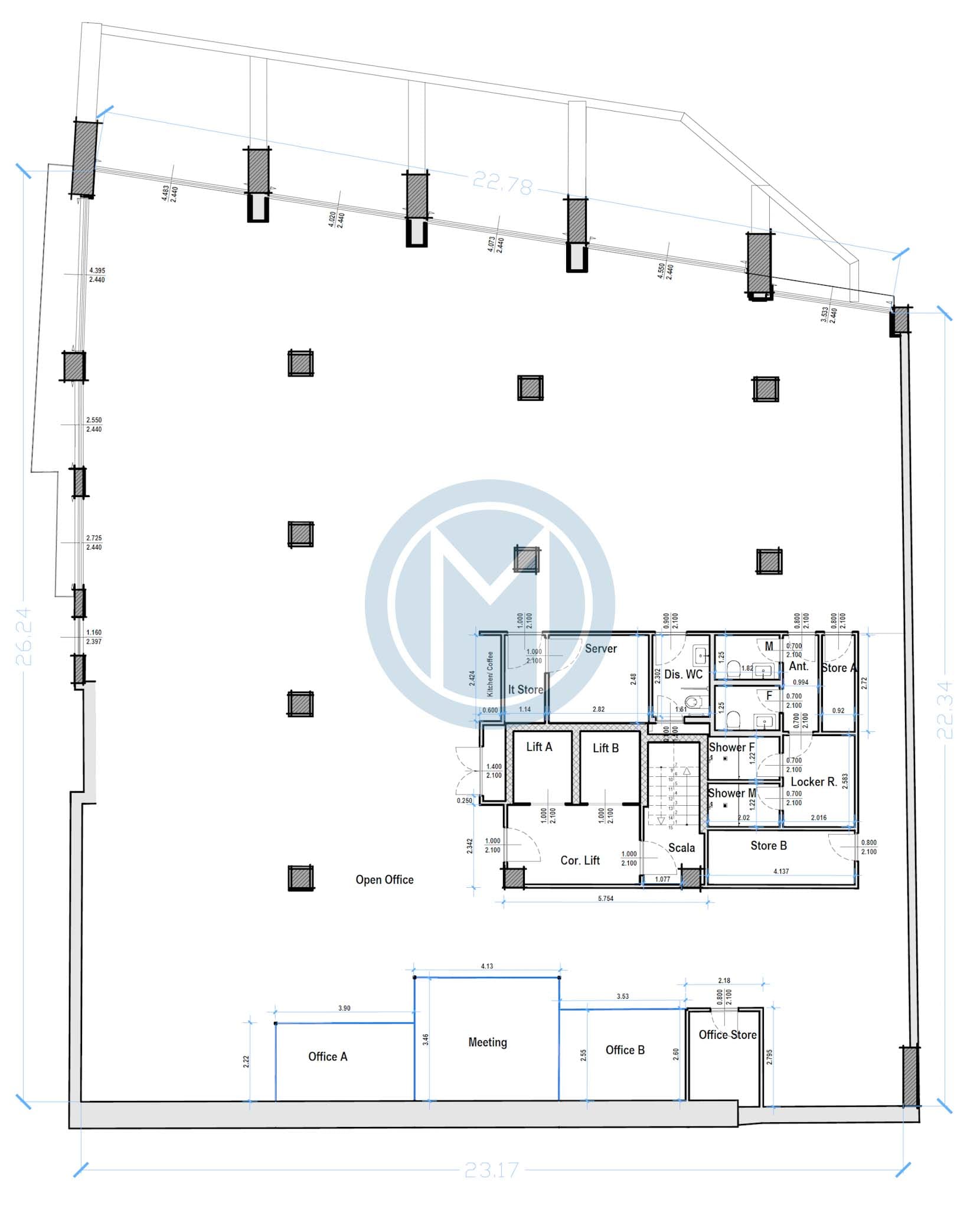
A high-end Balluta seafront office located in the heart of Balluta Bay, St Julian’s, just off the promenade connecting to Sliema. This premium office spans approximately 580 SQM internal space with an additional 84 SQM terrace, offering stunning sea views and an exceptional working environment.
Designed for modern businesses, the space combines functionality, comfort, and strong brand positioning in one of Malta’s most prestigious coastal locations.
Ideal for: 45-65 employees depending on layout and use.
Key Features
- Flexible layout with open-plan space, private offices, and a meeting room – supports team productivity, leadership privacy, and professional client engagement
- 84 SQM seafront terrace – enhances employee wellbeing while offering a strong setting for informal meetings and client impressions
- 3 bathrooms (including accessible) and 2 shower rooms – improves daily comfort and supports modern workforce needs
- Integrated storage, server room, and network infrastructure – ensures operational efficiency and readiness for high-performance business activity
- Fully air-conditioned workspace with backup generator – guarantees comfort and uninterrupted operations year-round
- Secure, professionally managed building with reception, CCTV, and access control – strengthens corporate image and ensures a safe working environment
- Fully finished, freshly prepared interiors with kitchenette – allows immediate setup with minimal additional investment
- Nearby offsite parking available – provides practical access for staff and visitors in a high-demand area
Location | Balluta Bay, St Julian’s
This Balluta seafront office is positioned in one of Malta’s most established coastal business locations, offering immediate access to both St Julian’s and Sliema. The office sits just off the well-known promenade, providing a direct connection to key commercial hubs while maintaining a prestigious waterfront setting.
Sliema is within a short walk of approximately 10 minutes, while Gzira can be reached in around 10 minutes by car, and Valletta within approximately 20 minutes, making daily commuting practical for teams operating across central Malta. The surrounding area is well-served by public transport, with multiple bus routes connecting directly to Valletta, Sliema, and other major towns.
The office is located close to the iconic Balluta Parish Church, a recognised landmark in Balluta Bay, and is surrounded by a mix of commercial activity and residential buildings, creating a balanced live-work environment that is attractive for employees. The nearby seafront and promenade also provide access to open-air and recreational spaces, ideal for breaks, informal meetings, and overall employee wellbeing.
Nearby Amenities
- Restaurants, cafés, and hospitality venues
- Retail and convenience outlets
- Hotels and serviced accommodation
- Fitness centres and wellness facilities
- Financial and business services
Why Choose This Office
This Balluta seafront office delivers a strong combination of location, space, and infrastructure, ideal for companies looking to enhance their brand presence while providing a high-quality working environment.
FAQ
How many people can this office accommodate?
The space is ideal for approximately 45-65 employees, depending on layout and workspace configuration.
Is the office suitable for client-facing businesses?
Yes, the seafront location and professional setup make it ideal for client meetings and brand positioning.
Are there facilities for staff wellbeing?
Yes, the office includes a terrace, shower rooms, and is located near seafront recreational areas.
Is the office ready to move into?
Yes, the office is fully finished and ready for immediate occupancy. Furniture can also be made available at an additional cost.
How accessible is the location?
The office is well-connected via public transport and within close proximity to key commercial hubs.
Call to Action
Looking for a premium Balluta seafront office?
Schedule a viewing with MaltaOffices.com and benefit from our expert commercial property advisory services, helping you secure the right office space based on your operational needs and growth plans.
Call Us: +356 7942 3033
Find Out More: Offices in St Julian’s
Details
Updated on April 2, 2026 at 11:16 am- Property Size 580 m²
- Land Area 664 m²
- Bathrooms 4
- Property Type Business Centres, Offices
- Ext. Area m² 84









