Iklin Office Space
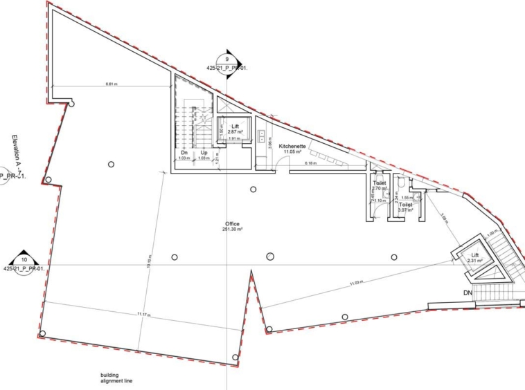
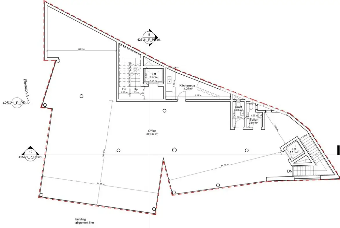
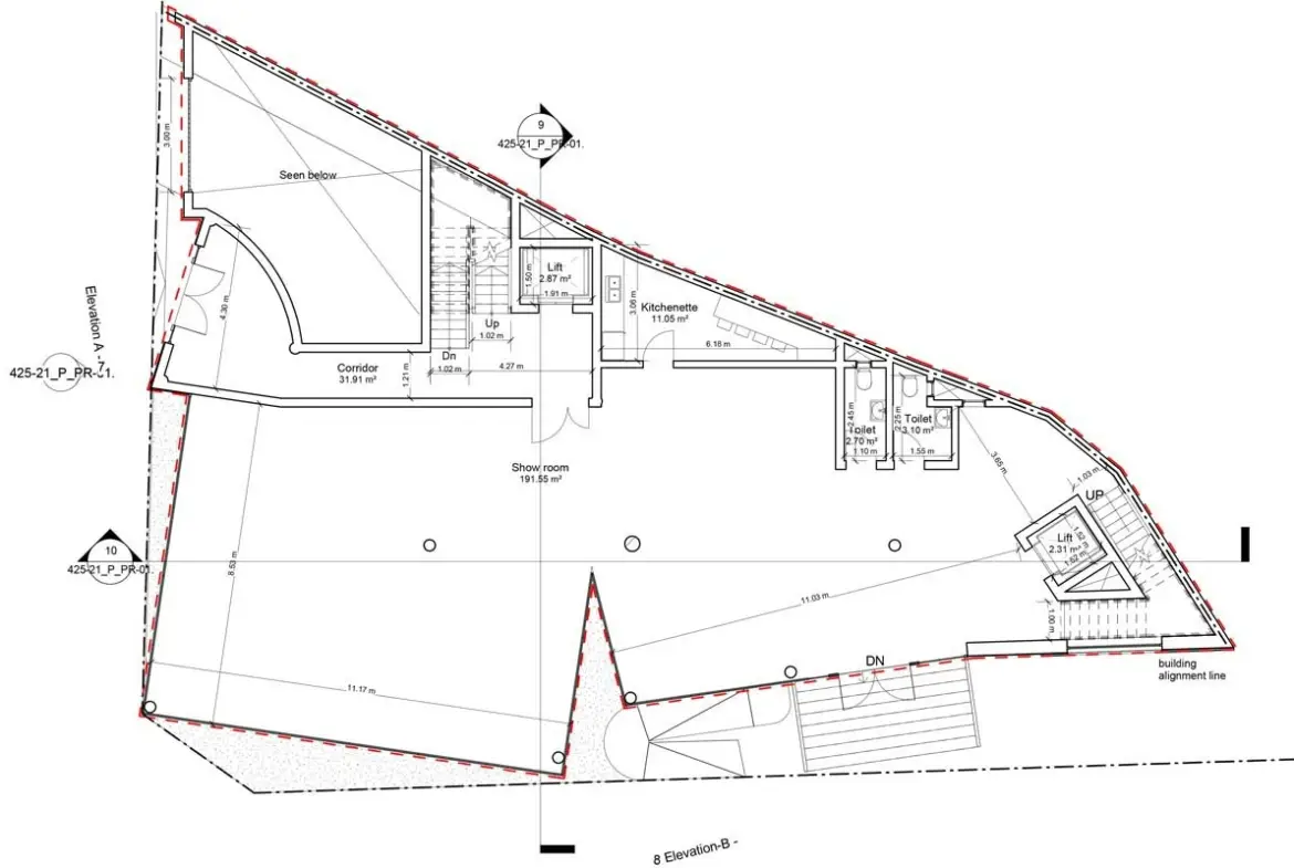
Iklin Office Space for Rent measuring four hundred and sixty one square metres (461 Sqm) enjoying fantastic exposure with large apertures. This rental Office lends itself exceptionally well for a company that is looking for a landmark building since this office has a corner layout.
Office for 40 to 60 workers in Iklin
This Office Space in Iklin for Rent would be suitable for a team of around 40 to 60 workers and thanks to it’s central location would make an excellent solution when hiring employees who may be either residing in the immediate area or who may be commuting to work with their own transport or public transport.
Two Office floors Offering Flexibilty
This office for lease is made up of two floors being on the ground floor and on the first floor. They are interconnected through a lift and a stair-case. The two levels may be used for different layouts, departments, or purposes. The ground floor section would make an ideal front-office for client-facing operations, where-as the first floor could lend itself to a back-office operation to segregate the different functions of the office.

Parking for This Iklin Office Lease
Parking for this Iklin Office lease is being offered on an optional arrangement and there are a total of 5 parking spaces being allocated to the entire commercial space. This may be an added advantage for those employees who make use of their own transport.
Rent this Iklin Office with our commercial real estate team
This Office for Rent Iklin may be just what your company is looking for. Get in touch with our team today to find out how it may fit in with your company objectives and future growth.
Details
Updated on March 26, 2025 at 1:49 am- Property ID MO-22535
- Price €7,260/Month
- Property Size 461 m²
- Bathrooms 4
- Parking Spaces 5
- Property Type Offices
- Property Status For Rent