Office for Rent Iklin
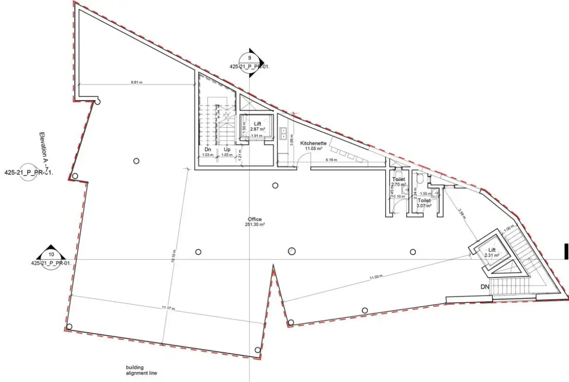
Office for Rent Iklin measuring two hundred and fifty four square metres (254 Sqm) enjoying fantastic exposure with large apertures. Ths rental Office lends itself exceptionally well for a company that is looking for a landmark building since this office has a corner layout.
Office for 20 to 30 workers in Iklin
This Office in Iklin for Rent would be suitable for a team of around 20 to 30 workers and thanks to it’s central location would make an excellent solution when hiring employees who may be either residing in the immediate area or who may be commuting to work with their own transport or public transport.
Option to Combine Two Offices for Rent in Iklin
This office for lease is located on the first floor of this multi-level building that features two commercial levels on ground and first floor. The two levels may be rented out together resulting in an office that would be over 450 Sqm in total size, which would make it suitable for over 50 employees.

Parking for This Iklin Office Lease
Parking for this Iklin Office lease is being offered on an optional arrangement and there are a total of 5 parking spaces being allocated to the entire commercial space. This may be an additional advantage for those employees who make use of their own transport.
Rent this Iklin Office with our commercial real estate team
This Office for Rent Iklin may be just what your company is looking for. Get in touch with our team today to find out how it may fit in with your company objectives and future growth.
Details
Updated on March 26, 2025 at 3:02 am- Property ID MO-22490
- Price €3,810/Month
- Property Size 254 m²
- Bathrooms 2
- Parking Spaces 3
- Property Type Offices
- Property Status To Rent