450 SQM Mriehel Office
450 SQM Mriehel Office | Overview
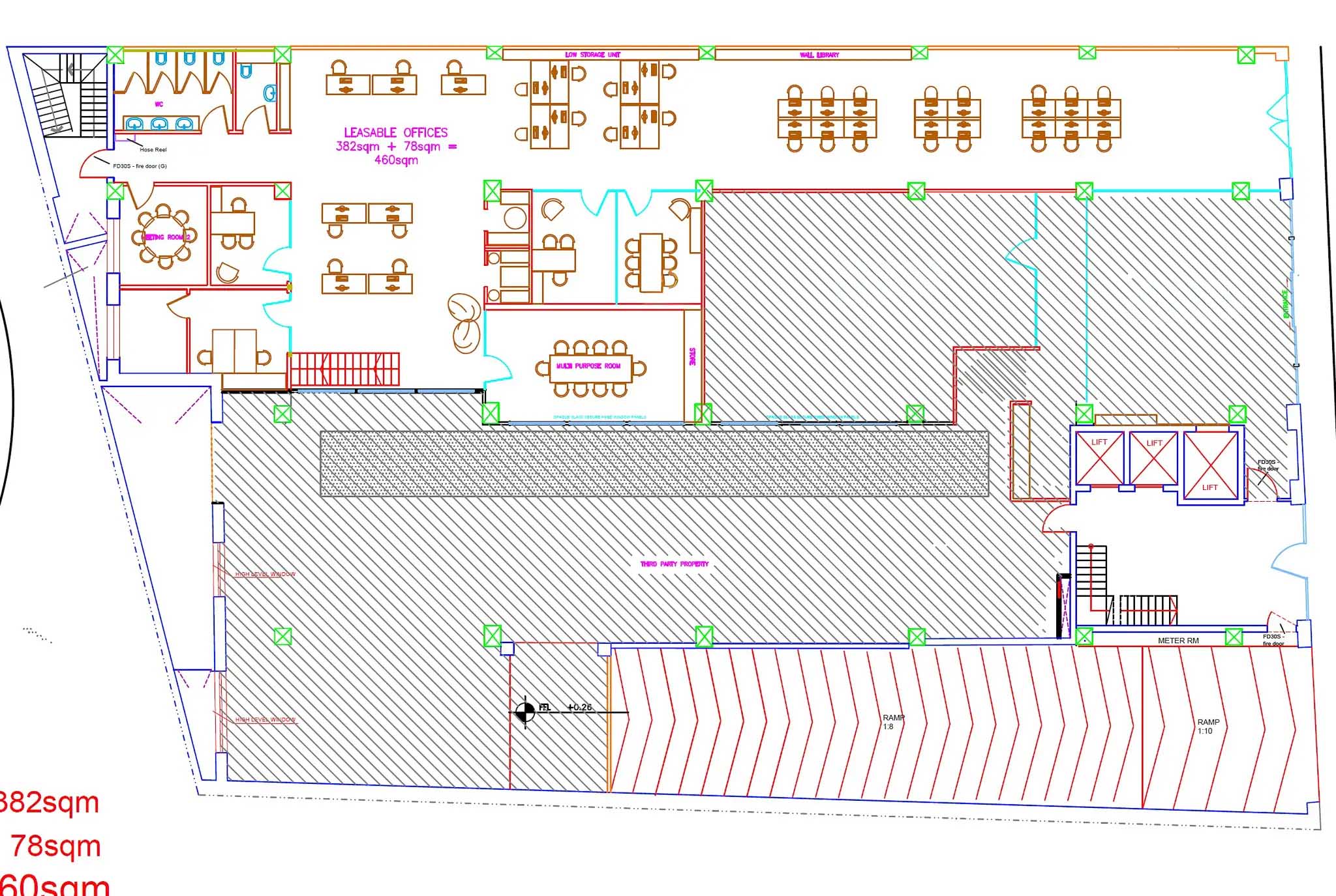
450 SQM Mriehel Office situated in a modern business centre within the Central Business District. This office offers a practical, well-organised layout with six separate rooms, including private offices, meeting rooms, and a boardroom. Located at ground floor level, it includes four bathrooms, a reception area, and an internal kitchenette. Designed for businesses seeking a ready-to-operate space, this office is well-suited to professional services firms, corporate departments, and international branches. Optional underground parking for up to seven vehicles is available. Positioned in a secure, professional environment, the office provides an efficient workspace in one of Malta’s top commercial zones.
Key Features
- Six-Room Configuration: Separates boardroom, private offices, and meeting areas, making it ideal for structured workflows and team efficiency.
- Four Bathrooms: Enhances convenience and comfort for teams, clients, and visitors. This supports daily operations at scale.
- Reception Area: Offers a professional welcome point, reinforcing brand presence and improving visitor experience.
- Optional Underground Parking: Up to seven reserved spaces available, supporting commuting staff and client access, reducing daily friction.
Location Info
This 450 SQM Mriehel Office is strategically located in Malta’s Central Business District. An area known for its accessibility and commercial concentration. Commute times are efficient, with Valletta just 10 minutes away, Birkirkara within 8 minutes, and the Sliema / Gzira seafront area reachable in approximately 15 minutes by car. The office benefits from close proximity to key national landmarks, including Mater Dei Hospital, the University of Malta, and Malta International Airport (around 15 minutes away). Ta’ Qali National Park and Sports Complex are also nearby, offering green space access for staff wellbeing or outdoor meetings.
The area is well-connected via multiple public transport routes and sits along primary arterial roads, allowing direct commutes from central and northern Malta. Several modern residential developments nearby also make it convenient for professionals who prefer to live close to their workplace.
Nearby Amenities
- Cafés, takeaway outlets, and bistros
- Banks, ATMs, and postal services
- Public transport connections
- Business centres and printing hubs
- Gym and wellness services nearby
Schedule a Viewing Today
Explore how this 450 SQM Mriehel Office can support your team’s growth and operations in Malta. Call us on +356 7942 3033 to learn more or schedule your private viewing.
Call us on +356 7942 3033
Find More Offices in Mriehel
Details
Updated on November 28, 2025 at 2:58 pm- Price €4,850/Monthly
- Property Size 460 m²
- Rooms 6
- Bathrooms 4
- Parking Spaces 7
- Parking Space Price 400
- Property Type Business Centres, Offices
- Property Status To Rent
- Rental Rate m²/yr 130
Similar Listings
Designer Office For Rent
- €5,900/Monthly
Modern Office in Central Business District
- €4,500/Monthly






